Splendida villetta situata in zona residenziale comoda a tutti i servizi

Bagnacavallo | 264.000,00 | Mq 161,7 | 3 | 2 | 2

Descrizione

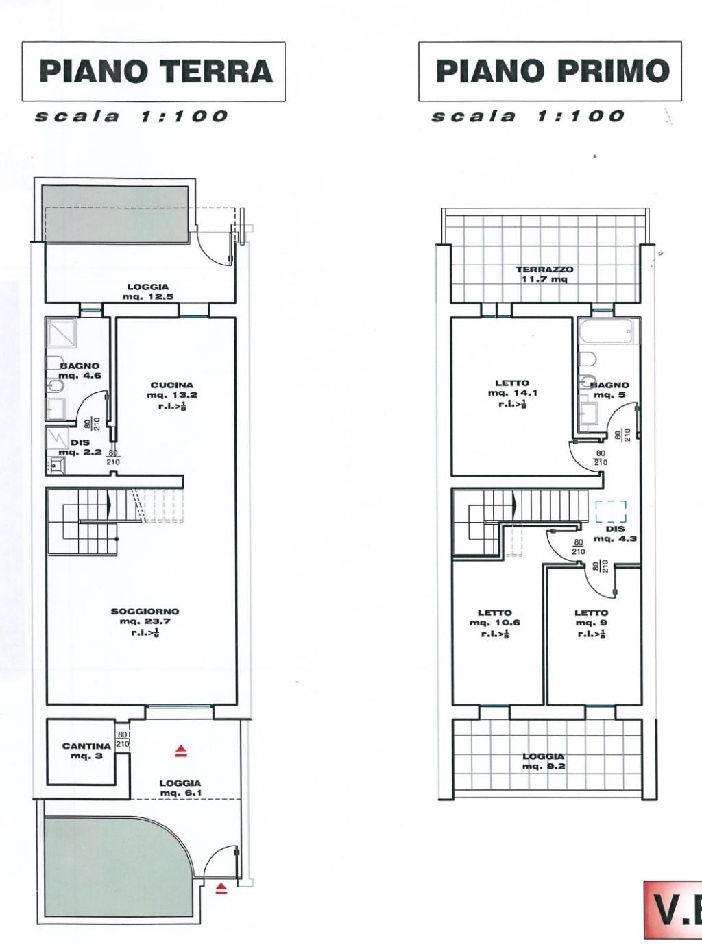
Splendida villetta situata in zona residenziale comoda a tutti i servizi. L'immobile è sviluppato su due piani, al piano terra troviamo un grande soggiorno con cucina a vista da cui si accede al disimpegno con accesso al bagno. Al primo piano, oltre che ad un altro bagno, troviamo due camera matrimoniale e uno studio. In tutte le camere abbiamo un balcone. Completano la proprietà un ripostiglio esterno, due aree private esterne e due posti auto scoperti. L'immobile si trova all'interno di un residence dotato di locali ad uso comune come la piscina, il thermarium e la sala comune. Off.352 Prezzo 264.000€

Dettagli

  • Riferimento: 415
  • Tipologia: Villa a schiera
  • Comune: Bagnacavallo
  • Zona:
  • Cucina: Cucina a vista
  • Camere: 2
  • Bagni: 2
  • Box: Posto auto scoperto
  • Piano: Su più livelli di 2
  • Anno costruzione:
  • Stato conservazione: Ottimo
  • Stato: Libero
  • Spese cond. annue €: 1.000,00
  • Riscaldamento: Centralizzato
  • Caratteristiche

    Terrazzi 11 mq, Balconi 9 mq, Cantina 3 mq, Giardino di proprietà, Giardino condominiale, Predisposizione condizionatore

    Efficienza energetica

    Classe B Ipe 40,71 KWh/m²a

    Bagnacavallo

    Richiedi informazioni

    Ai sensi e per gli effetti degli articoli 13 e 6 del Regolamento UE 2016/679, dichiaro di aver preso visione dell’informativa di Comprocasa srl per il trattamento dei dati personali.

    Splendida villetta situata in zona residenziale comoda a tutti i servizi

    264.000,00 | Mq 161,7 | 3 | 2 | 2

    Bagnacavallo

    Splendida villetta situata in zona residenziale comoda a tutti i servizi. L'immobile è sviluppato su due piani, al piano terra troviamo un grande soggiorno con cucina a vista da cui si accede al disimpegno con accesso al bagno. Al primo piano, oltre che ad un altro bagno, troviamo due camera matrimoniale e uno studio. In tutte le camere abbiamo un balcone. Completano la proprietà un ripostiglio esterno, due aree private esterne e due posti auto scoperti. L'immobile si trova all'interno di un residence dotato di locali ad uso comune come la piscina, il thermarium e la sala comune. Off.352 Prezzo 264.000€

    Riferimento: 415

    Tipologia: Villa a schiera

    Comune: Bagnacavallo

    Zona:

    Cucina: Cucina a vista

    Camere: 2

    Bagni: 2

    Box: Posto auto scoperto

    Piano: Su più livelli di 2

    Anno costruzione:

    Stato conservazione: Ottimo

    Stato: Libero

    Spese cond. annue €: 1.000,00

    Riscaldamento: Centralizzato

    Terrazzi 11 mq, Balconi 9 mq, Cantina 3 mq, Giardino di proprietà, Giardino condominiale, Predisposizione condizionatore

    Efficienza energetica
    Classe B Ipe 40,71 KWh/m²a